Let
Newmarket Road
£1,952 pcm
Property Features
- NO STUDENTS SORRY
- Recently refurbished
- Four double bedrooms
- Modern kitchen
- Good storage
- Close to local bus routes
- Gas central heating
- Double glazing
- Close to bus routes
- Close to Sainsburys
Property Summary
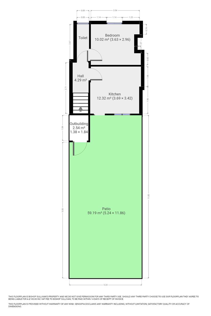
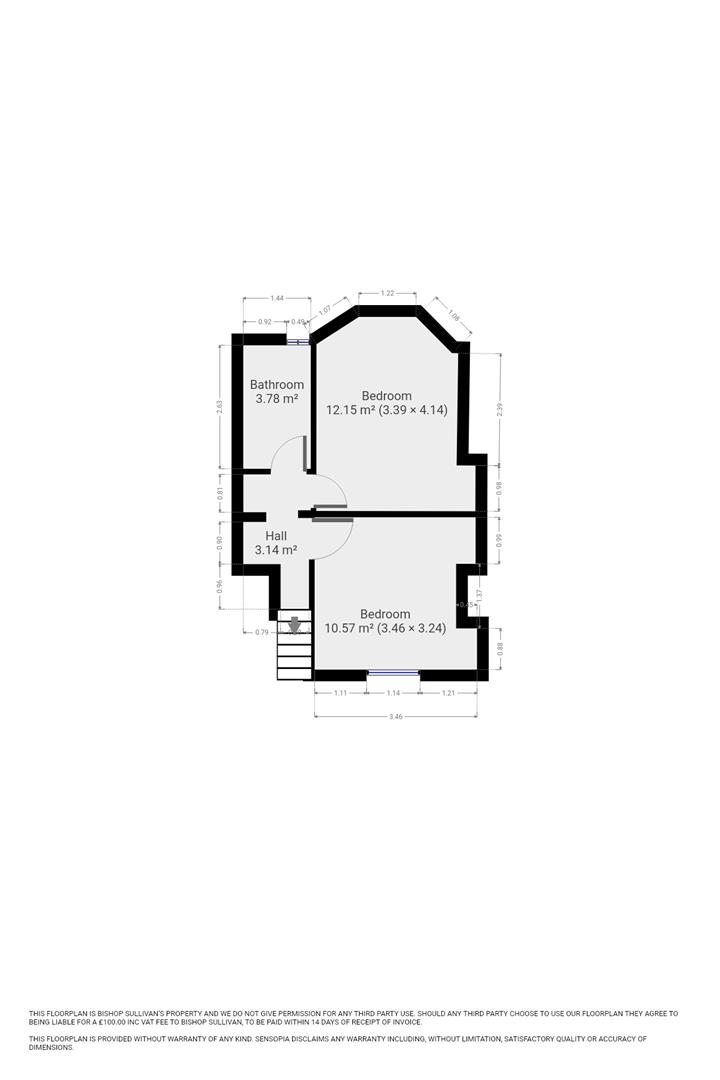
VIDEO TOUR & FLOOR PLAN. Bishop Sullivan present a four double bedroom mid-terraced period house in good decorative order with rear patio-garden close to Sainsbury's and local bus routes. All rooms have built in storage and the property consists of a modern and bright South facing lower ground kitchen with hob, oven, large fridge freezer, washing machine, breakfast bar and access to the garden, WC, double bedroom next to kitchen, on the ground floor front main double bedroom with bay window and wardrobe, South facing rear bedroom, on the first floor large double bedroom with bay window and built in storage, South facing double bedroom, shower room with easy clean vinyl. The property further benefits from Gas central heating, Virgin Media connection, double glazing throughout and a large rear patio with beds - would suit someone looking to grow their own veg.
HMO license so sharers are ok :)
Council Tax Band C = £1,825.97 per annum
Parking Zone V = no waiting list
HMO license so sharers are ok :)
Council Tax Band C = £1,825.97 per annum
Parking Zone V = no waiting list























